固話:13829701296
手機:13829701296
QQ:523229659
地址:廣州市番禺區石基鎮凌邊工業區9號
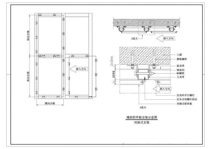
幕墻鋁單板采用優質高強度鋁合金板材,幕墻鋁單板的厚度規格常為1.5、2.0、2.5、3.0、3.5、4.0MM,幕墻鋁單板的結構主要由面板、加強筋、掛耳等部件組成。有要求時板背面可填隔熱礦巖棉、掛耳可直接由面板折彎而成,亦可在面板上另外加裝。在面板背面焊有螺栓,通過螺栓把加強筋和面板聯系起來,形成一個牢固的整體,加強筋起到增加單層幕墻鋁單板剛性的作用,保證單層幕墻鋁單板在長期使用中的抗風壓和平整性;
蜂窩鋁單板分量輕,剛性好,強度高,厚3.0毫米,每平方重8公斤,抗拉強度100 ~ 280牛頓/米。
蜂窩鋁單板杰出的耐候性和耐腐蝕性。以kyflat-500和hylur500為基料的Pvdf氟碳涂料能夠達到25年無腿色。
蜂窩鋁單板杰出的工藝性。采用先加工后涂裝的工藝,能夠將鋁板加工成平面、圓弧、球體等各種復雜的幾何形狀。




從工藝上來看:幕墻鋁單板屬于單層產品,加工比較簡單,但精度較差;蜂窩鋁單板為復合產品,加工的速度和才能較弱,但精度較好。

從各自特點來看:幕墻鋁單板是一般的非復合板,3MM厚的幕墻鋁單板一般比25MM蜂窩鋁單板低15-20%。因為自重和成型的原因,4MM厚的幕墻鋁單板在建筑物中使用較少,這種厚度的幕墻鋁單板的造價與蜂窩單鋁板產品相差僅在5%左。蜂窩鋁單板是一種復合板材,具有強度高,重量輕,表面大,平整度好,裝置和保護方便,可以重復使用,環保,耐熱膨脹,收縮性好等長處。

廣州市臻禹金屬建材有限公司生產廠家創建于2001年,本企業坐座落于亞洲經濟活躍的我國珠江三角洲中心——廣州。本企業現有職工200多人,資金雄厚;是一家集研制、生產、銷售、裝置和售后服務于一體的企業。公司已通過ISO9001:2000質量管理體系認證,并榮獲《我國建筑行業知名品牌》、《優質產品》等榮譽,是我國工程建設協會在國內建筑裝修范疇特別推薦使用的“綠色環保產品”。 多年來,公司一直致力于開拓、立異產品,以其精深的技藝,高的品質和誠篤的服務乞立于我國天花飾業的前列。作為金屬天花的龍頭企業和知名品牌,憑著多年的執著追求,在國內外上百個重大經典裝修工程及新五金加工工業中獲得碩大的成功,臻禹建材現有臻禹,納美品牌等都是注冊商標,近年來發揚世界工藝精華,飛速發展,生產的“臻禹”牌天花,多達數十個系列和上百個種類。其間國家專利技術的運用,與超絕的天花裝修工藝結合,涉及金屬天花裝修的所有范疇,盡顯輝煌。


